Profil Desa Perkembangan Kalurahan Panjangrejo
Administrator 08 Desember 2025 10:16:46 WIB
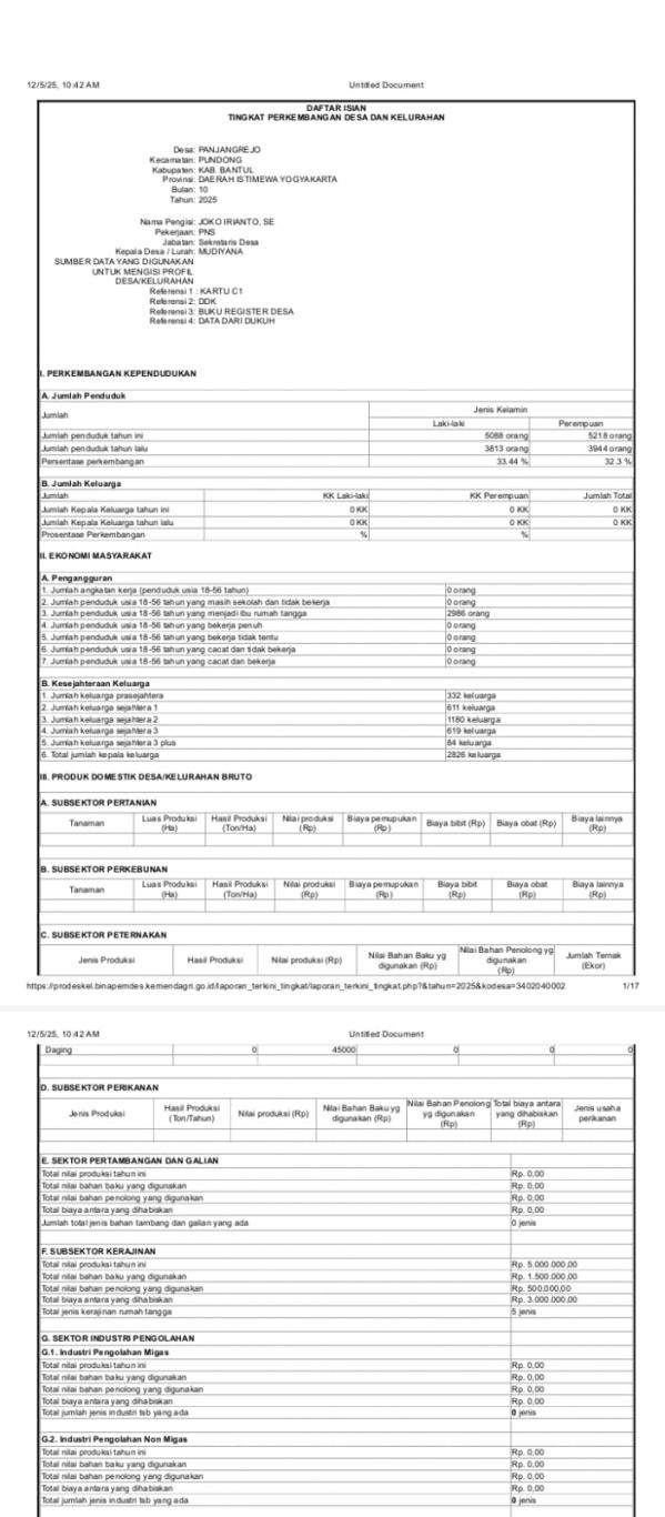
Pada Semester 2 tahun ini, Kalurahan Panjangrejo menunjukkan perkembangan yang signifikan dalam berbagai aspek penyelenggaraan pemerintahan, pembangunan, dan pemberdayaan masyarakat. Sebagai salah satu kalurahan yang terus berupaya meningkatkan kualitas layanan publik, Panjangrejo berhasil memperkuat koordinasi antar-pamong, lembaga kemasyarakatan, serta partisipasi warga dalam setiap program yang dijalankan.
Di bidang pemerintahan, pelayanan administrasi semakin tertata dengan pemanfaatan sistem informasi kalurahan yang lebih efektif. Proses pengurusan surat menyurat, pendataan kependudukan, hingga layanan informasi publik menjadi lebih mudah diakses oleh warga. Transparansi anggaran dan pelaporan kegiatan juga mengalami peningkatan melalui penyajian informasi yang lebih terbuka dan komunikatif.
Dalam bidang pembangunan, Semester 2 diwarnai dengan penyelesaikan beberapa pekerjaan fisik yang mendukung kenyamanan dan mobilitas warga. Peningkatan kualitas jalan lingkungan, perbaikan saluran irigasi, serta pembangunan fasilitas umum menjadi fokus utama. Pembangunan tersebut tidak hanya berdampak pada kelancaran aktivitas harian, tetapi juga mendukung penguatan sektor pertanian sebagai salah satu potensi lokal Panjangrejo.
Sektor pemberdayaan masyarakat turut menunjukkan perkembangan positif. Kegiatan pelatihan UMKM, pembinaan kelompok tani, serta penguatan peran organisasi kemasyarakatan seperti PKK dan Karang Taruna semakin aktif. Melalui berbagai program, warga memperoleh ruang untuk mengembangkan keterampilan, meningkatkan produktivitas, dan memperluas peluang ekonomi. Di sisi lain, kegiatan sosial budaya dan keagamaan tetap berjalan dinamis, menjadi perekat kebersamaan antarwarga.
Dari aspek sosial, tingkat partisipasi masyarakat dalam gotong royong dan kegiatan kalurahan menunjukkan tren yang stabil dan bahkan cenderung meningkat. Hal ini menjadi bukti kuatnya budaya kebersamaan di Panjangrejo yang diwariskan turun-temurun. Program-program sosial seperti penyuluhan kesehatan, pendampingan kelompok rentan, serta kegiatan kepemudaan juga semakin terarah dan memberikan manfaat nyata bagi warga.
Secara keseluruhan, perkembangan Kalurahan Panjangrejo pada Semester 2 mencerminkan komitmen pemerintah kalurahan bersama masyarakat untuk terus maju, mandiri, dan berdaya saing. Dengan dukungan seluruh pihak, Panjangrejo diharapkan dapat mempertahankan momentum positif ini menuju pembangunan yang berkelanjutan dan peningkatan kesejahteraan seluruh warga
Dokumen Lampiran : Profil Desa Perkembangan Kalurahan Panjangrejo
Komentar atas Profil Desa Perkembangan Kalurahan Panjangrejo
Formulir Penulisan Komentar
Mbangun Desa
MUSIK
Statistik Kunjungan
| Hari ini | ![]() ![]() ![]() ![]() ![]() ![]() |
| Kemarin | ![]() ![]() ![]() ![]() ![]() |
| Jumlah Pengunjung | ![]() ![]() ![]() ![]() ![]() ![]() ![]() |
Website desa ini berbasis Aplikasi Sistem Informasi Desa (SID) Berdaya yang diprakarsai dan dikembangkan oleh Combine Resource Institution sejak 2009 dengan merujuk pada Lisensi SID Berdaya. Isi website ini berada di bawah ketentuan yang diatur dalam Undang-Undang Republik Indonesia Nomor 14 Tahun 2008 tentang Keterbukaan Informasi Publik dan Attribution-NonCommercial-NoDerivatives 4.0 International (CC BY-NC-ND 4.0) License




















